🔥 Po této nemovitosti je vysoká poptávka!

Moderní byt 2+kk o celkové ploše 67 m² | projekt Botanica | Praha 5 – Jinonice

Chmelařská 900/3, 158 00 Praha 5 - Jinonice, Česko

2+kk

67

Virtuální prohlídka k dispozici

Dokumenty ke stažení

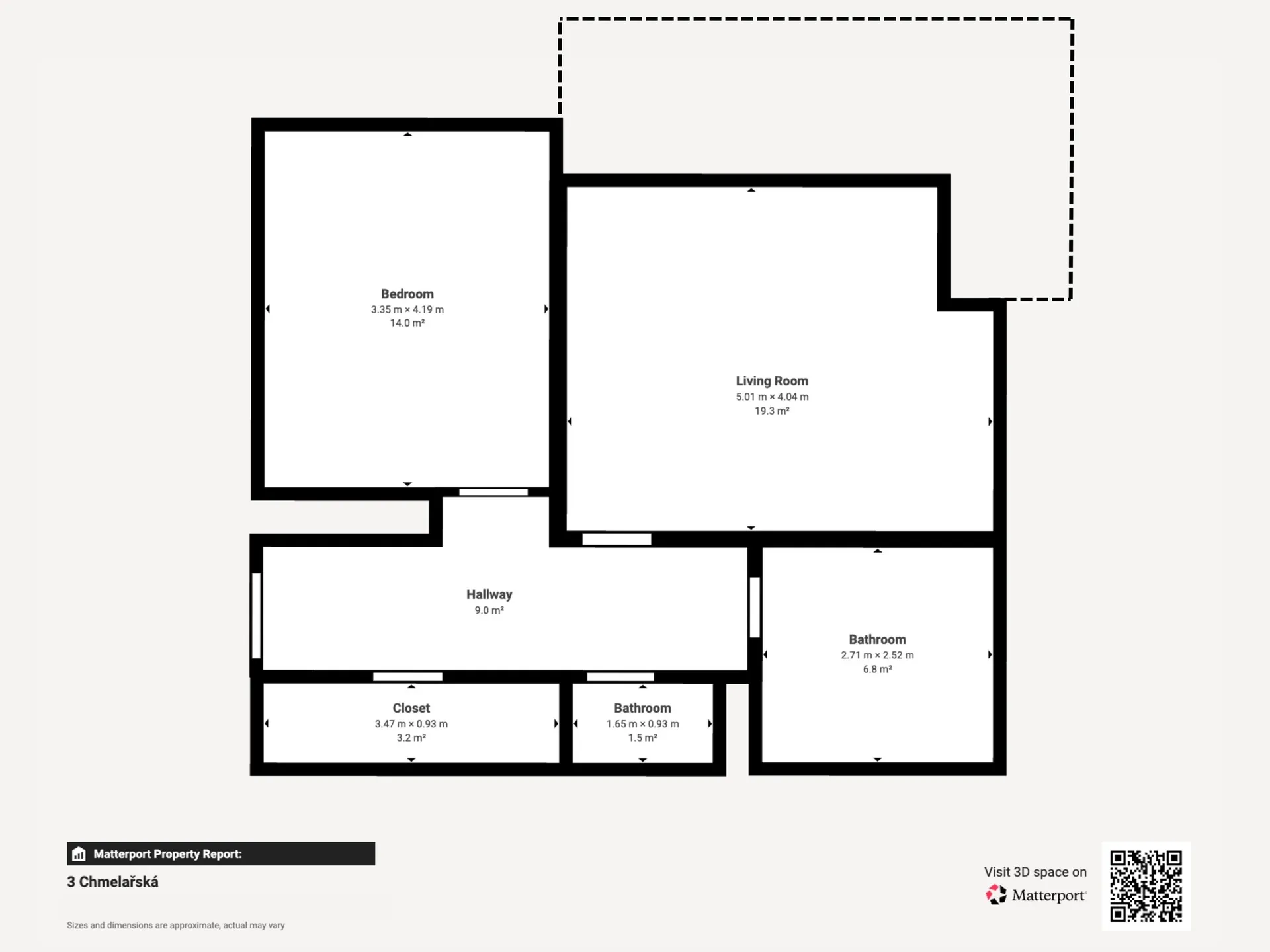
Popis nemovitosti

Moderní byt 2+kk, 67 m², Praha 5 - Jinonice

Hledáte moderní bydlení v klidné lokalitě s výbornou dostupností do centra?

Nabízíme k prodeji světlý byt 2+kk o celkové ploše 67 m² s balkonem a garážovým stáním v oblíbeném projektu Botanica v pražských Jinonicích.

Byt je aktuálně vedený jako ateliér, avšak na katastr nemovitostí byla již vložena kompletní dokumentace pro jeho rekolaudaci na bytovou jednotku.

Dispozice

- předsíň (9,03 m²)
- komora (3,27 m²)
- koupelna s vanou (7,00 m²)
- WC (1,57 m²)
- ložnice (14,63 m²)
- obývací pokoj s kuchyňským koutem (19,02 m²)
- balkon (12,83 m²)

K bytu náleží garážové stání podzemní garáži.

Vybavení a technické údaje

- byt ve výborném udržovaném stavu
- dřevěná okna s izolačním dvojsklem
- dřevěné podlahy
- kuchyňská linka na míru včetně spotřebičů
- koupelna s vanou a kvalitní sanitou
- centrální vytápění a ohřev vody – plynová kotelna v domě
- energetická náročnost budovy: B

Byt je ideální jak pro vlastní bydlení, tak i jako investiční příležitost v atraktivní pražské lokalitě.

Jiří Koucký - realitní makléř

Uvedené výměry jsou orientační. V případě více zájemců bude nemovitost prodána nejlepší nabídce a majitel si vyhrazuje právo vybrat kupujícího na základě jím zvolených kritérií. Veškeré zveřejněné údaje mají pouze informativní charakter a nepředstavují nabídku ve smyslu § 1731 nebo § 1732 občanského zákoníku, ani veřejný příslib dle § 1733 občanského zákoníku.

Krásný byt v domě z roku 2011

O lokalitě

Výhody lokality

Projekt Botanica patří mezi nejžádanější části Prahy 5. Nabízí klidné prostředí v blízkosti přírody - park Vidoule a Prokopské údolí jsou pár minut chůze - a zároveň vynikající dopravní dostupnost (stanice metra Nové Butovice do 10 minut pěšky).

V okolí je kompletní občanská vybavenost: školy, školky, obchody, Německá škola, fitness centra i restaurace.

9 700 000 Kč vč. provize a právního servisu

Nemovitost je zatím dostupná